公寓案例當前位置:首頁>產品展示>公寓案例

- 詳細介紹
項目地址:府前一號
項目風格:輕奢風格
設 計 師:小 姜
項目經理:毛 工
開工日期:2019年01月07日
設計說明:
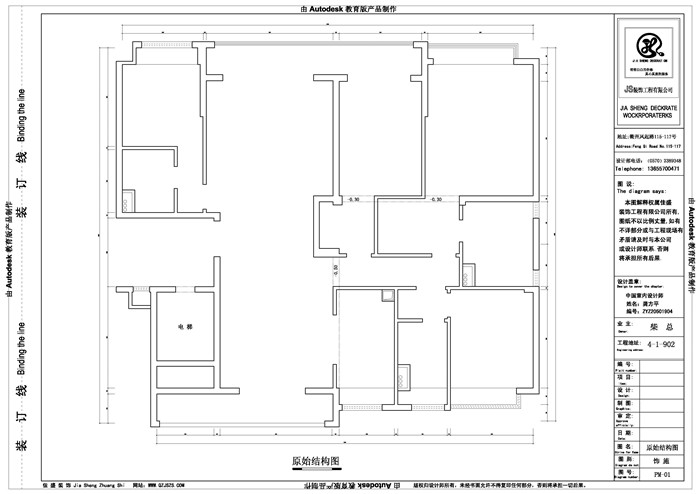
.輕奢,顧名思義,即"輕度的奢侈"。在愈演愈烈的奢侈品風暴洗禮下,人們都可以在其中輕松體會輕奢--消費能力雖不足以與一擲千金的富豪相提并論,但對于大牌的喜愛與忠誠卻絲毫不遜于前者;樂于在經濟能力許可的情況下,購買諸如錢包、腰帶、墨鏡、香水等小件輕奢侈品,裝點自己的生活。原始結構圖:

平面布置圖:

客廳效果圖:

餐廳效果圖:

臥室效果圖:

次臥:

業主、設計師、項目經理開工合影:

禮炮慶祝開工大吉:

舉杯慶祝 開工順順利利:

門套保護以防施工過程磕碰到:

施工四大規范
下水管保護蓋以防堵塞:

臨時馬桶:

3D放樣:





水電完工:








泥工完工:







木工:






衢州市佳盛裝飾工程有限公司
地址:浙江省衢州市西區雙嶺南路285號(翡翠灣小區東側)
電話:0570- 3068373
手機:13867013688
聯系人:周先生
網址:www.bmpy.cn
長按二維碼
關注【佳盛裝飾】
# 更多精彩內容 #

公司榮譽:


衢州市佳盛裝飾工程有限公司
地址:浙江省衢州市西區雙嶺南路285號(翡翠灣小區東側)
電話:0570- 3068373
手機:13867013688
聯系人:周先生
網址:www.bmpy.cn
- 上一個:府前一號劉總 下一個:中梁首府張總返回產品列表



