公寓案例當前位置:首頁>產品展示>公寓案例

- 詳細介紹


項目地址:君悅東方
項目風格:法式風格
設 計 師:鄭云劍
項目經理: 周 工
開工日期:2017年5月21日設計說明:簡約風格的特色是將設計的元素、色彩、照明、原材料簡化到最少的程度,但對
色彩、材料的質感要求很高。因此,簡約的空間設計通常非常含蓄,往往能達到以少勝多、以簡勝繁的效果。
設計師:鄭云劍

項目經理:周工

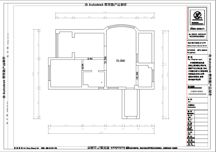
原始結構圖:

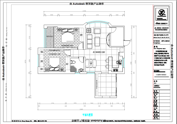
平面布置圖:

效果圖:

開工現場業主、設計師、項目經理合影

開工禮炮 慶祝開工


施工規范(水電、泥工、木工、油漆)

門套保護,以防施工過程刮擦到

窗戶玻璃保護貼

煤氣表盤保護套

工地臨時垃圾桶

水電完工:



衛生間連接廚房、陽臺鏈接管走頂,頂面外套為紅藍保溫管制作


藍色為弱電,紅色為強電,強弱電分開鋪設以防干擾



瓷磚鋪設完工:



每期表盤保護從開工到結束都會保護著



吊頂完工:



木工衣柜完工:



佳盛裝飾公司簡介:
2003年,衢州市佳盛裝飾工程有限公司成立。其業務范圍包括:住宅 、公寓、娛樂空間、辦公空間、陳列展館等工程的裝飾裝修、設計及施工。公司秉承“服務到永遠”的經營理念,誠信打造透明工程,全力營造放心消費環境。用質量來表現,用服務來關懷,依靠客戶口碑來不斷提升佳盛品牌的知名度和影響力。
一直以來,“佳盛人”以客戶的新房我的家為宗旨,以品牌建設為中心,致力于創造完美空間,展現精湛工藝。 在設計上,崇尚人性化、多元化、藝術化、更加強調功能、結構和形式的完整,追求材料、技術、空間的表現深度與精確,創造出別具風格的工作和生活環境。用領先的設計和專業的施工,做品味空間的引領者!
2010年被評為衢州市裝飾行業協會副會長單位;
2011年被衢州市工商行政管理局評為衢州市家庭裝飾消費維權示范單位;
2012年家裝設計大賽中被衢州市廣播電視總臺評為觀眾最喜愛家裝設計獎;
2013年被評為衢州市裝修行業12315消費者維權聯絡站;
2012-2013年被衢州市柯城區住房城鄉建設局評為衢州市家裝行業骨干企業;
2014年被裝飾協會評為衢州市首批倡導綠色裝修單位;
2014年被衢州市工商行政管理局評為衢州市誠信裝飾公司;
2011-2016年被衢州晚報評為十家最值得信賴的裝飾企業;
2016年被市場監督管理局評為衢州市誠信裝飾企業;
佳盛裝飾,期待與您共同長期發展!
公司榮譽:


衢州市佳盛裝飾工程有限公司
地址:浙江省衢州市西區雙嶺南路285號(翡翠灣小區東側)
電話:0570- 3068373
手機:13867013688
聯系人:周先生
網址:www.bmpy.cn

衢州市佳盛裝飾工程有限公司
地址:浙江省衢州市西區雙嶺南路285號(翡翠灣小區東側)
電話:0570- 3068373
手機:13867013688
聯系人:周先生
網址:www.bmpy.cn
- 上一個:衢州公館俞總 下一個:世紀鋒尚31-2-1003返回產品列表



