公寓案例當前位置:首頁>產品展示>公寓案例

- 詳細介紹


項目地址:香榭麗舍
項目風格:韓式田園風
設計師: 林芝娟項目經理:周 工
開工日期:2016年12月19日
設計說明:韓式田園風格,設計上講求心靈的自然回歸感,給人一種撲面而來的濃郁氣息。把一些精細的后期配飾融入設計風格之中,充分體現設計師和業主所追求的一種安逸、舒適的生活氛圍。這個客廳大量使用碎花圖案的各種布藝和掛飾!韓式家居的臥室布置較為溫馨,作為主人的私密空間,主要以功能性和實用舒適為考慮的重點,一般的臥室不設頂燈,多用溫馨柔軟的成套布藝來裝點,同時在軟裝和用色上非常統一。
設計師:林芝娟

項目經理:周工

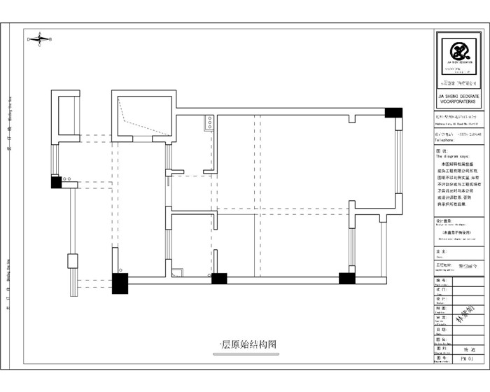
一樓原始結構圖:

一樓平面布置圖:

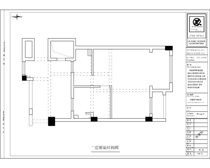
二樓原始結構圖:

二樓平面布置圖:

客廳效果圖:

主臥效果圖:

小區外景圖:

開工照:(業主、項目經理與設計師合影)



擺8字~整齊擺放好~
開工大吉~

客戶、設計師、項目經理現場溝通放樣:

現場溝通方案:

施工現場臨時馬桶:

水電完工圖:










泥工完工圖:


廚房瓷磚整齊鋪設~


衛生間瓷磚鋪設



木工完工圖:








佳盛裝飾公司簡介:
2003年,衢州市佳盛裝飾工程有限公司成立。其業務范圍包括:住宅 、公寓、娛樂空間、辦公空間、陳列展館等工程的裝飾裝修、設計及施工。公司秉承“服務到永遠”的經營理念,誠信打造透明工程,全力營造放心消費環境。用質量來表現,用服務來關懷,依靠客戶口碑來不斷提升佳盛品牌的知名度和影響力。
一直以來,“佳盛人”以客戶的新房我的家為宗旨,以品牌建設為中心,致力于創造完美空間,展現精湛工藝。 在設計上,崇尚人性化、多元化、藝術化、更加強調功能、結構和形式的完整,追求材料、技術、空間的表現深度與精確,創造出別具風格的工作和生活環境。用領先的設計和專業的施工,做品味空間的引領者!
2010年被評為衢州市裝飾行業協會副會長單位;
2011年被衢州市工商行政管理局評為衢州市家庭裝飾消費維權示范單位;
2012年家裝設計大賽中被衢州市廣播電視總臺評為觀眾最喜愛家裝設計獎;
2013年被評為衢州市裝修行業12315消費者維權聯絡站;
2012-2013年被衢州市柯城區住房城鄉建設局評為衢州市家裝行業骨干企業;
2014年被裝飾協會評為衢州市首批倡導綠色裝修單位;
2014年被衢州市工商行政管理局評為衢州市誠信裝飾公司;
2011-2016年被衢州晚報評為十家最值得信賴的裝飾企業;
2016年被市場監督管理局評為衢州市誠信裝飾企業;
佳盛裝飾,期待與您共同長期發展!
公司榮譽:


衢州市佳盛裝飾工程有限公司
地址:浙江省衢州市西區雙嶺南路285號(翡翠灣小區東側)
電話:0570- 3068373
手機:13867013688
聯系人:周先生
網址:www.bmpy.cn

衢州市佳盛裝飾工程有限公司
地址:浙江省衢州市西區雙嶺南路285號(翡翠灣小區東側)
電話:0570- 3068373
手機:13867013688
聯系人:周先生
網址:www.bmpy.cn
- 上一個:衢州公館俞總 下一個:恒大御景半島24-1-1901返回產品列表



