公寓案例當前位置:首頁>產品展示>公寓案例

- 詳細介紹


項目地址:月亮灣
項目風格:歐式風格
設計師:龔方平
項目經理:周兆福
開工日期:2016年11月7日
設計說明:歐式風格強調以華麗的裝飾、濃烈的色彩、精美的造型達到雍容華貴的裝飾效果。歐式客廳頂部喜用大型燈池,并用華麗的枝形吊燈營造氣氛。門窗上半部多做成圓弧形,并用帶有花紋的石膏線勾邊。入廳口處多豎起兩根豪華的羅馬柱,室內則有真正的壁爐或假的壁爐造型。墻面最好用壁紙,或選用優質乳膠漆,以烘托豪華效果。地面材料以石材或地板為佳。歐式客廳非常需要用家具和軟裝飾來營造整體效果。深色的橡木或楓木家具,色彩鮮艷的布藝沙發,都是歐式客廳里的主角。還有浪漫的羅馬簾,精美的油畫,制作精良的雕塑工藝品,都是點染歐式風格不可缺少的元素。但需要注意的是,這類風格的裝修,在面積、空間較大的房間內會達到更好的效果。
設計師:龔方平

項目經理周工:

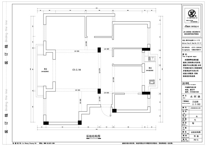
原始結構圖:

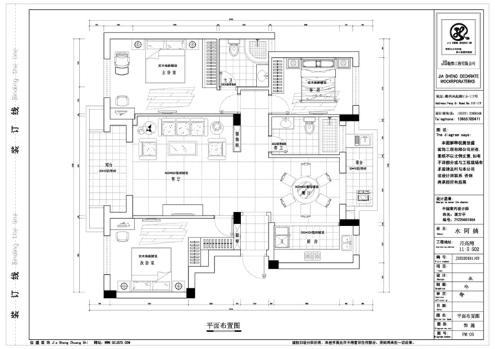
平面布置圖:

客廳效果圖:

現場開工照:(小區外景)



現場合影:業主、設計師、項目經理

開工禮炮慶祝:




開工現場門套保護:

電梯口地貼保護:

現場煤氣保護:


水電完工圖:













泥工完工圖:









佳盛裝飾公司簡介:
2003年,衢州市佳盛裝飾工程有限公司成立。其業務范圍包括:住宅 、公寓、娛樂空間、辦公空間、陳列展館等工程的裝飾裝修、設計及施工。公司秉承“服務到永遠”的經營理念,誠信打造透明工程,全力營造放心消費環境。用質量來表現,用服務來關懷,依靠客戶口碑來不斷提升佳盛品牌的知名度和影響力。
一直以來,“佳盛人”以客戶的新房我的家為宗旨,以品牌建設為中心,致力于創造完美空間,展現精湛工藝。 在設計上,崇尚人性化、多元化、藝術化、更加強調功能、結構和形式的完整,追求材料、技術、空間的表現深度與精確,創造出別具風格的工作和生活環境。用領先的設計和專業的施工,做品味空間的引領者!
2010年被評為衢州市裝飾行業協會副會長單位;
2011年被衢州市工商行政管理局評為衢州市家庭裝飾消費維權示范單位;
2012年家裝設計大賽中被衢州市廣播電視總臺評為觀眾最喜愛家裝設計獎;
2013年被評為衢州市裝修行業12315消費者維權聯絡站;
2012-2013年被衢州市柯城區住房城鄉建設局評為衢州市家裝行業骨干企業;
2014年被裝飾協會評為衢州市首批倡導綠色裝修單位;
2014年被衢州市工商行政管理局評為衢州市誠信裝飾公司;
2011-2016年被衢州晚報評為十家最值得信賴的裝飾企業;
2016年被市場監督管理局評為衢州市誠信裝飾企業;
佳盛裝飾,期待與您共同長期發展!
公司榮譽:


衢州市佳盛裝飾工程有限公司
地址:浙江省衢州市西區雙嶺南路285號(翡翠灣小區東側)
電話:0570- 3068373
手機:13867013688
聯系人:周先生
網址:www.bmpy.cn

衢州市佳盛裝飾工程有限公司
地址:浙江省衢州市西區雙嶺南路285號(翡翠灣小區東側)
電話:0570- 3068373
手機:13867013688
聯系人:周先生
網址:www.bmpy.cn
- 上一個:衢州公館俞總 下一個:香榭麗舍17-1-606返回產品列表



