公寓案例當前位置:首頁>產品展示>公寓案例

- 詳細介紹


項目地址:楓丹白露
項目風格:歐式
設計師:龔方平
項目經理:毛工
開工日期:2016年8月30日設計說明:
簡約歐式風格沿襲古典歐式風格的主元素,融入了現代的生活元素。歐式的居室有的不只是豪華大氣,更多的是愜意和浪漫。通過完美的典線,精益求精的細節處理,帶給家人數不盡的舒服觸感。
簡歐的裝修要求只要有一些歐式裝修的符號在里面就可以,因此,它其實是兼容性非常強的設計,如果把家具換掉,可以瞬間變成現代風格,也可以變成中式風格,總之能做到空間的千變萬化。對于打算裝修的朋友來說,簡歐風格具有很強的實用性,也很適合中國人的居住習慣。其特點是頂、壁、門窗等裝飾線角變化豐富,并融入了比如羅馬柱、壁爐、卷草紋、線條優美的啞口和白色木格窗等非常有代表性的歐式元素。簡歐式是別墅裝修流行的一種風格,就是簡約現代的歐式風格設計師:龔方平

項目經理:毛工

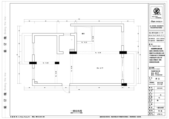
一層原始框架圖:

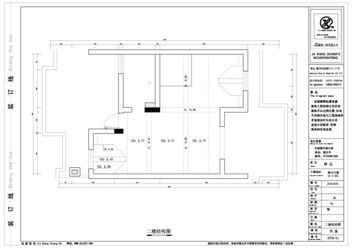
二層原始結構圖:

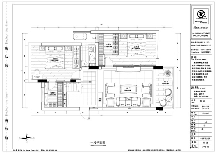
一層平面布置圖:

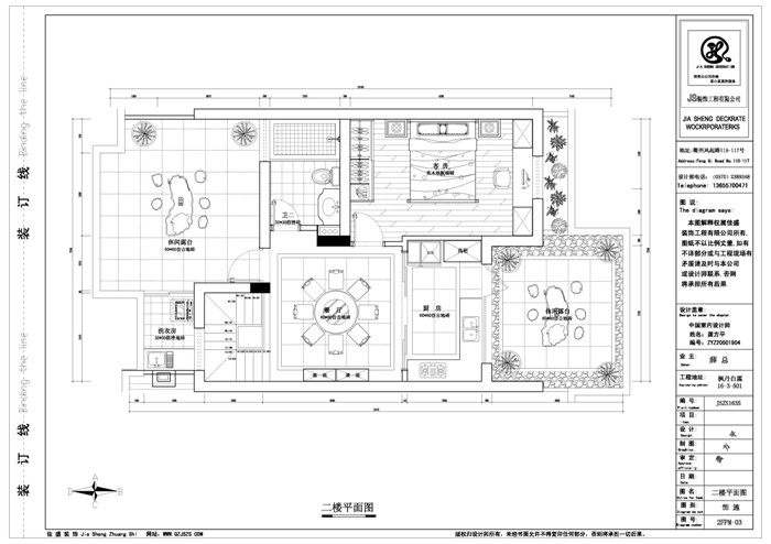
二層平面布置圖:

客廳效果圖:

餐廳效果圖:

臥室效果圖:

現場開工照:



現場合影:(業主、設計師、項目經理)

開工禮炮慶祝:


開工現場門套保護:

裝修期間材料堆放及注意事項標示:

煤氣表盤保護:

水電完工圖:










泥工完工圖:








木工完工圖:






佳盛裝飾公司簡介:
2003年,衢州市佳盛裝飾工程有限公司成立。其業務范圍包括:住宅 、公寓、娛樂空間、辦公空間、陳列展館等工程的裝飾裝修、設計及施工。公司秉承“服務到永遠”的經營理念,誠信打造透明工程,全力營造放心消費環境。用質量來表現,用服務來關懷,依靠客戶口碑來不斷提升佳盛品牌的知名度和影響力。
一直以來,“佳盛人”以客戶的新房我的家為宗旨,以品牌建設為中心,致力于創造完美空間,展現精湛工藝。 在設計上,崇尚人性化、多元化、藝術化、更加強調功能、結構和形式的完整,追求材料、技術、空間的表現深度與精確,創造出別具風格的工作和生活環境。用領先的設計和專業的施工,做品味空間的引領者!
2010年被評為衢州市裝飾行業協會副會長單位;
2011年被衢州市工商行政管理局評為衢州市家庭裝飾消費維權示范單位;
2012年家裝設計大賽中被衢州市廣播電視總臺評為觀眾最喜愛家裝設計獎;
2013年被評為衢州市裝修行業12315消費者維權聯絡站;
2012-2013年被衢州市柯城區住房城鄉建設局評為衢州市家裝行業骨干企業;
2014年被裝飾協會評為衢州市首批倡導綠色裝修單位;
2014年被衢州市工商行政管理局評為衢州市誠信裝飾公司;
2011-2016年被衢州晚報評為十家最值得信賴的裝飾企業;
2016年被市場監督管理局評為衢州市誠信裝飾企業;
佳盛裝飾,期待與您共同長期發展!
公司榮譽:


衢州市佳盛裝飾工程有限公司
地址:浙江省衢州市西區雙嶺南路285號(翡翠灣小區東側)
電話:0570- 3068373
手機:13867013688
聯系人:周先生
網址:www.bmpy.cn

衢州市佳盛裝飾工程有限公司
地址:浙江省衢州市西區雙嶺南路285號(翡翠灣小區東側)
電話:0570- 3068373
手機:13867013688
聯系人:周先生
網址:www.bmpy.cn
- 上一個:衢州公館俞總 下一個:美麗東城1-4-601返回產品列表



