公寓案例當前位置:首頁>產品展示>公寓案例

- 詳細介紹


項目地址:香榭麗舍
項目風格:美 式
設計師: 龔方平
項目經理:周工
開工日期:2016年5月31日裝修預算:半包價129000元(半包不含墻地磚、廚房櫥柜、門窗套、地板、燈具、窗簾、電器、沙發、床)
設計說明:
美式風格,顧名思義是來自于美國的裝修和裝飾風格。是殖民地風格中最著名的代表風格,某種意義上已經成了殖民地風格的代名詞。美國是個移民國家,歐洲各國各民族人民來到美洲殖民地,把各民族各地區的裝飾裝修和家具風格都帶到了美國,同時由于美國地大物博,極大的放開了移民們對尺寸的欲望,使得美式風格以寬大,舒適,雜糅各種風格而著稱。美式風格簡述
設計師: 龔方平

項目經理:周工

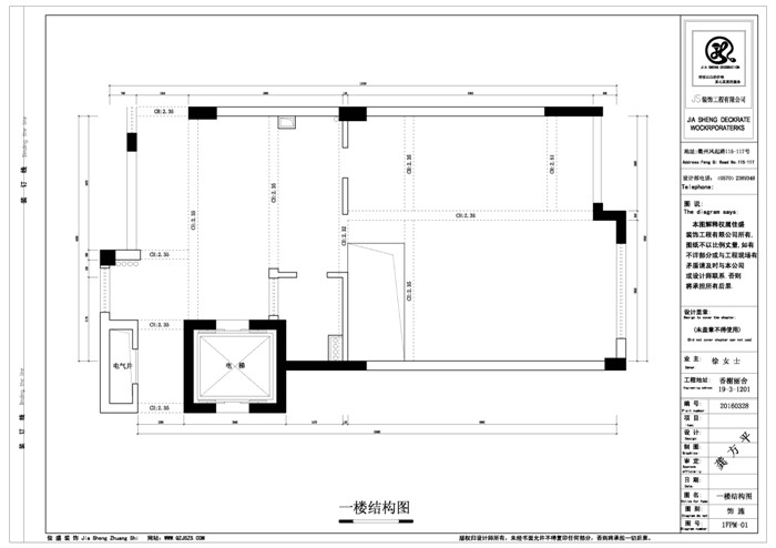
一層原始結構圖:

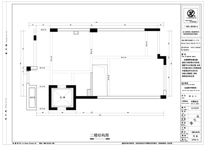
二層原始結構圖:

一層平面布置圖:

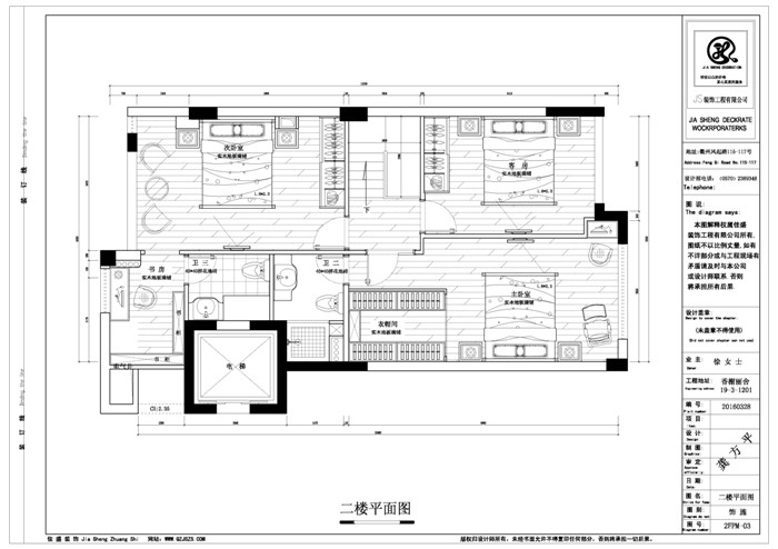
二樓平面布置圖:

客廳效果圖:

次臥效果圖:

主臥效果圖:

【佳盛裝飾】恭賀 香榭麗舍周總豪宅開工大吉!周總選擇我們裝修,看了我們的設計和施工,還有管理和服務都非常認可,同時也對比了幾家裝飾公司,最終還是選擇了我們佳盛裝飾,也知道佳盛裝飾是衢州第一口碑家裝品牌!我們佳盛團隊一定努力不負眾望,做好每一套房子,給您一個舒適,環保的家!!!
開工照:(小區實景)









水電完工實景圖:



















木工完工圖:






佳盛裝飾公司簡介:
2003年,衢州市佳盛裝飾工程有限公司成立。其業務范圍包括:住宅 、公寓、娛樂空間、辦公空間、陳列展館等工程的裝飾裝修、設計及施工。公司秉承“服務到永遠”的經營理念,誠信打造透明工程,全力營造放心消費環境。用質量來表現,用服務來關懷,依靠客戶口碑來不斷提升佳盛品牌的知名度和影響力。
一直以來,“佳盛人”以客戶的新房我的家為宗旨,以品牌建設為中心,致力于創造完美空間,展現精湛工藝。 在設計上,崇尚人性化、多元化、藝術化、更加強調功能、結構和形式的完整,追求材料、技術、空間的表現深度與精確,創造出別具風格的工作和生活環境。用領先的設計和專業的施工,做品味空間的引領者!
2010年被評為衢州市裝飾行業協會副會長單位;
2011年被衢州市工商行政管理局評為衢州市家庭裝飾消費維權示范單位;
2012年家裝設計大賽中被衢州市廣播電視總臺評為觀眾最喜愛家裝設計獎;
2013年被評為衢州市裝修行業12315消費者維權聯絡站;
2012-2013年被衢州市柯城區住房城鄉建設局評為衢州市家裝行業骨干企業;
2014年被裝飾協會評為衢州市首批倡導綠色裝修單位;
2014年被衢州市工商行政管理局評為衢州市誠信裝飾公司;
2011-2016年被衢州晚報評為十家最值得信賴的裝飾企業;
2016年被市場監督管理局評為衢州市誠信裝飾企業;
佳盛裝飾,期待與您共同長期發展!
公司榮譽:


衢州市佳盛裝飾工程有限公司
地址:浙江省衢州市西區雙嶺南路285號(翡翠灣小區東側)
電話:0570- 3068373
手機:13867013688
聯系人:周先生
網址:www.bmpy.cn

衢州市佳盛裝飾工程有限公司
地址:浙江省衢州市西區雙嶺南路285號(翡翠灣小區東側)
電話:0570- 3068373
手機:13867013688
聯系人:周先生
網址:www.bmpy.cn
- 上一個:衢州公館俞總 下一個:金都花園16-3-302返回產品列表



